Eskilstuna
Västerleden 60
Ljus och Trevlig Kontorslokal i Optimalt Läge
Utförande
Total yta
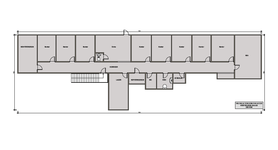
230 m2
Typ
Kontor
Byggår
2016
Beskrivning
Vi erbjuder nu en fantastisk kontorslokal med ett mycket bra läge i direkt anslutning till Västerleden. Lokalen har ett utmärkt skyltläge och ligger nära E20, vilket gör det enkelt att nå Eskilstuna centrum och motorvägen på bara några minuter. Här får både anställda och besökare en smidig tillgång.
Lokalen rymmer åtta kontorsrum, konferensrum, lunchrum samt flera toaletter, inklusive en RWC. De stora fönsterpartierna bjuder på ett underbart ljusinsläpp och ger en öppen och trivsam arbetsmiljö.
Intill kontoret finns gott om parkeringsplatser för både personal och kunder, vilket är en stor fördel.
Området är levande och attraktivt, med närhet till välkända verksamheter som ELON, MECA, Circle K, MAX Hamburgare, Burger King, BILIA och Möller Bil. Dessutom finns de två lunchrestaurangerna Timjan Restaurang och Spicy Hot i fastigheten som välkomnar både hyresgäster och allmänheten.
Välkommen att kontakta oss för mer information eller för att boka visning av denna attraktiva kontorslokal!






















